Robert Liminowicz
Design and Visualizations
Design and Visualizations
← Back
Published on
10th July 2023
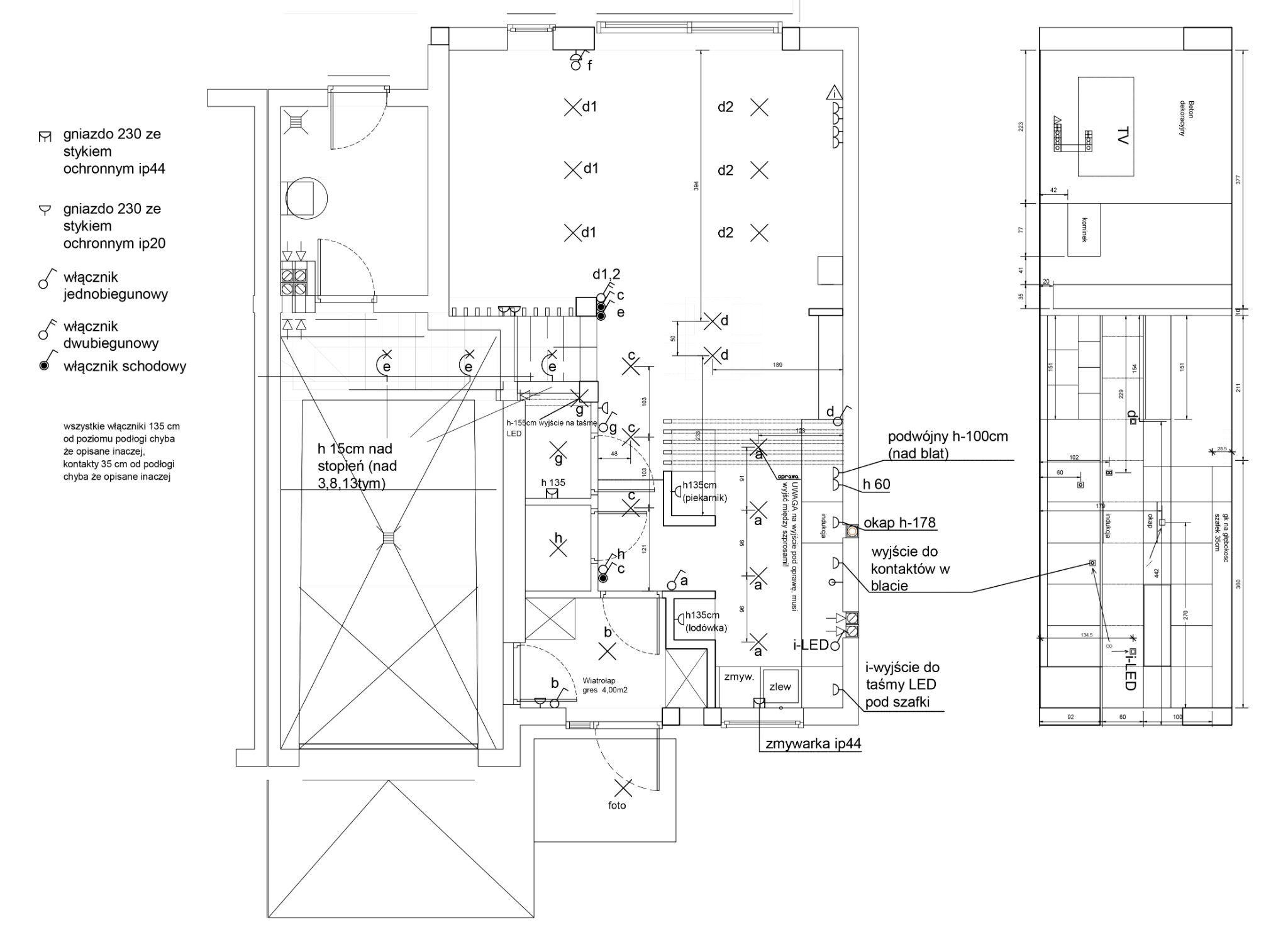
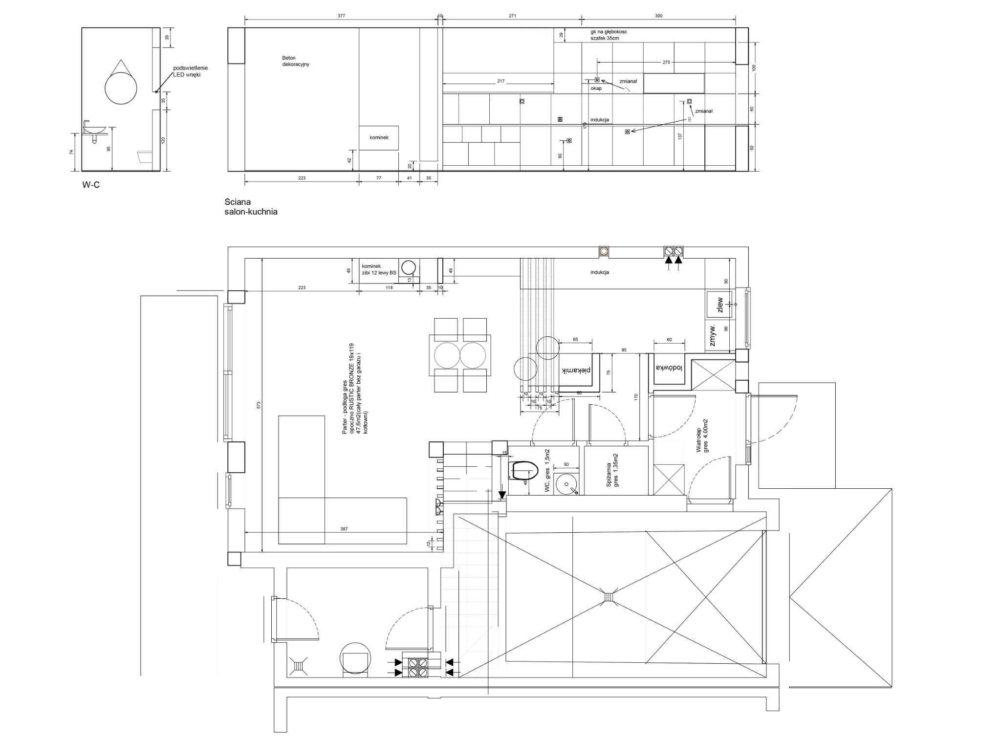
Mieszkanie 120m
Post a comment